My Search Tools:

$4,350,000 - 2558 E Fm 487, Jarrell

-
Bedrooms
-
Baths
N/A
SQ. Feet
21.3
Acres

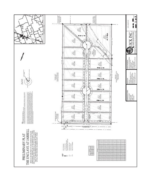
ENCLAVE AT JARRELL – SHOVEL READY - SUBDIVISION OPPORTUNITY FOR SALE! Rare opportunity to acquire a fully platted and infrastructure-ready subdivision in the rapidly growing community of Jarrell, Texas. Enclave at Jarrell offers developers and investors the ability to begin construction immediately with significant groundwork already completed. Property Highlights: • Total Size: 21.3 Acres • Lots: 16 Platted Residential Lots – each 1+ acre • Road Infrastructure: Internal road constructed to county specifications; ready for dedication to the county upon completion and build-out • Water: Water lines installed with meters pre-purchased through Jarrell Schwertner Water Supply Corporation • Fire Protection: Fire hydrants installed • Electric: Electricity available on-site • Sewer: Individual septic systems required for each lot Location Advantages: • Located in the rapidly growing community of Jarrell, just north of Austin • Approximately 2 miles east of Interstate 35, providing convenient regional access • Near the newly opened Jarrell Ranch Middle School, enhancing long-term residential demand Additional Information: Owner may consider owner financing for qualified buyers. Contact listing agent for terms and details. Listing Agent is a licensed real estate agent in the State of Texas and has a familial relationship with the seller.

Essential Information

  • MLS® #:
    1992602
  • Price:
    $4,350,000
  • Bathrooms:
    0.00
  • Acres:
    21.30
  • Type:
    Land
  • Sub-Type:
    Multiple Parcels
  • Status:
    Active

Community Information

  • Address:
    2558 E Fm 487
  • Subdivision:
    Enclave At Jarrell
  • City:
    Jarrell
  • County:
    Williamson
  • State:
    TX
  • Zip Code:
    76537

Amenities

  • Utilities:
    Electricity Available, Sewer Not Available, See Remarks, Water Available
  • Features:
    None
  • View:
    City Lights, City, Creek/Stream
  • Waterfront:
    Stream

Exterior

  • Exterior Features:
    Private Entrance, See Remarks
  • Lot Description:
    See Remarks

School Information

  • District:
    Jarrell ISD
  • Elementary:
    Jarrell
  • Middle:
    Jarrell
  • High:
    Jarrell

Additional Information

  • Zoning:
    Residential Subdivision

Property Listed by: Coldwell Banker Realty

The information being provided is for consumers' personal, non-commercial use and may not be used for any purpose other than to identify prospective properties consumers may be interested in purchasing.

Based on information from the Austin Board of REALTORS® (alternatively, from ACTRIS) from April 6th, 2026 at 12:46pm CDT. Neither the Board nor ACTRIS guarantees or is in any way responsible for its accuracy. The Austin Board of REALTORS®, ACTRIS and their affiliates provide the MLS and all content therein "AS IS" and without any warranty, express or implied. Data maintained by the Board or ACTRIS may not reflect all real estate activity in the market.

All information provided is deemed reliable but is not guaranteed and should be independently verified.