My Search Tools:

$2,700,000 - 8001 Circuit Of The Americas Boulevard 502, Del Valle

-
Bedrooms
2
Baths
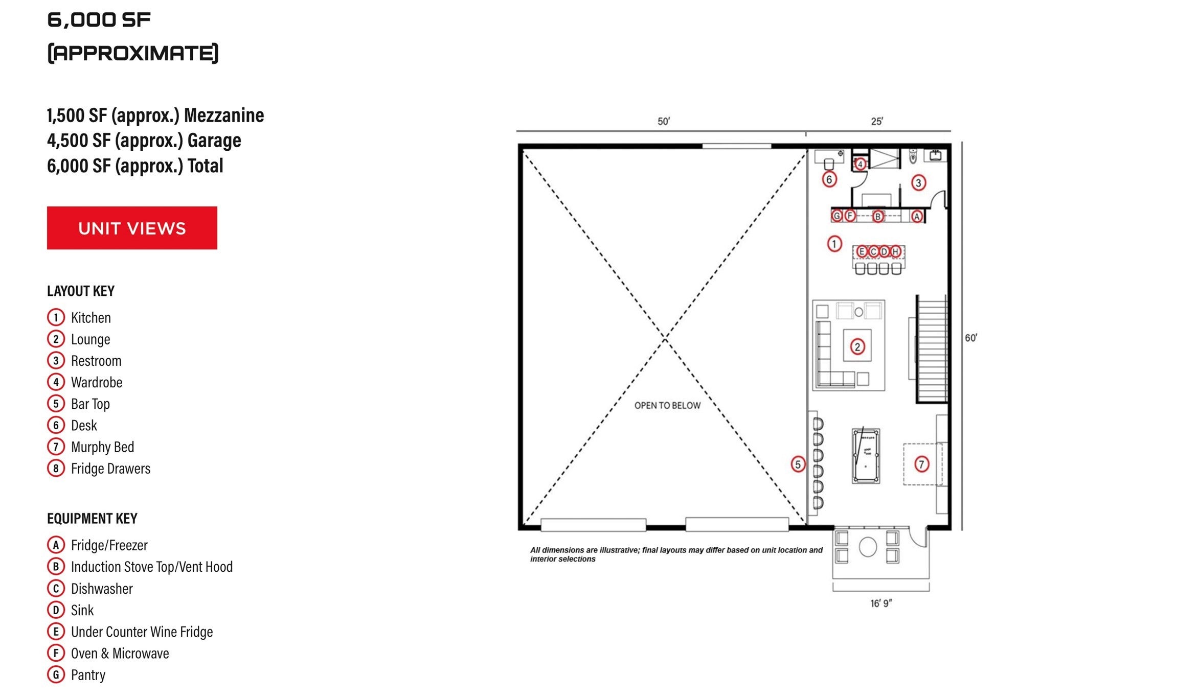
6,000
SQ. Feet
2025
Year Built

Welcome to T11 Car Community, where family adventure and love of racing meets refined living. Austin's Premier Motorsport Lifestyle Community. More than a destination for drivers, T11 is a lifestyle experience. This unit is the XXL floorplan. The listed price is the unfinished shell cost which includes insulated exterior walls & ceiling, installed A/C, and glass + metal garage door. Photos show various finished out examples starting at $3,660,000. Each residence is thoughtfully designed for connection — a place to entertain friends, spend weekends together, and enjoy unforgettable moments surrounded by Austin’s most exciting attractions. Whether it’s the thrill of race weekend - watching from the private viewing platform, or a relaxing family getaway, T11 offers more than ownership — it’s access to it all. Imagine having a place to stay after live concerts, a visit to the amusement park, race day, or a family-friendly festival. Instead of fighting traffic with 100K other people, you arrive at to your own gated entrance and park at your own place! Potential Uses: Weekend residence or guest suite; Podcast or content studio; Entertaining venue or private bar; Office or creative space; Collector’s showcase with lift capacity for multiple vehicles Just beyond your doorstep, COTA is transforming into a year-round playground for all ages — with a full-scale 34 ride amusement park coming soon! Future, proposed, potential amenities include: 1000-Room Hotel with Convention Center, Second Track for Turning and Testing, Water Slide Park, 18 Hole Golf Course, Shopping and Dining, Indoor/Outdoor Sports Complex.

Essential Information

  • MLS® #:
    2164857
  • Price:
    $2,700,000
  • Bathrooms:
    2.00
  • Full Baths:
    2
  • Square Footage:
    6,000
  • Acres:
    0.00
  • Year Built:
    2025
  • Type:
    Residential
  • Sub-Type:
    Condominium
  • Status:
    Active

Community Information

  • Address:
    8001 Circuit Of The Americas Boulevard 502
  • Subdivision:
    Circuit of the Americas
  • City:
    Del Valle
  • County:
    Travis
  • State:
    TX
  • Zip Code:
    78617

Amenities

  • Amenities:
    Concierge
  • Utilities:
    Electricity Available, Sewer Available, Water Available
  • Features:
    Common Grounds/Area, Clubhouse, Concierge, Gated
  • Parking:
    Attached, Gated
  • # of Garages:
    20
  • Waterfront:
    None

Interior

  • Interior:
    Concrete
  • Appliances:
    See Remarks
  • Heating:
    Central
  • # of Stories:
    2
  • Stories:
    Two

Exterior

  • Exterior Features:
    Private Entrance
  • Lot Description:
    None
  • Roof:
    Metal
  • Construction:
    See Remarks
  • Foundation:
    Slab

School Information

  • District:
    Del Valle ISD
  • Elementary:
    Popham
  • Middle:
    Del Valle
  • High:
    Del Valle

Property Listed by: Compass Re Texas, Llc

The information being provided is for consumers' personal, non-commercial use and may not be used for any purpose other than to identify prospective properties consumers may be interested in purchasing.

Based on information from the Austin Board of REALTORS® (alternatively, from ACTRIS) from April 9th, 2026 at 9:15pm CDT. Neither the Board nor ACTRIS guarantees or is in any way responsible for its accuracy. The Austin Board of REALTORS®, ACTRIS and their affiliates provide the MLS and all content therein "AS IS" and without any warranty, express or implied. Data maintained by the Board or ACTRIS may not reflect all real estate activity in the market.

All information provided is deemed reliable but is not guaranteed and should be independently verified.