My Search Tools:

$1,999,000 - 214 Midnight Sky Drive, Austin

4
Bedrooms
5
Baths
4,930
SQ. Feet
3
Acres

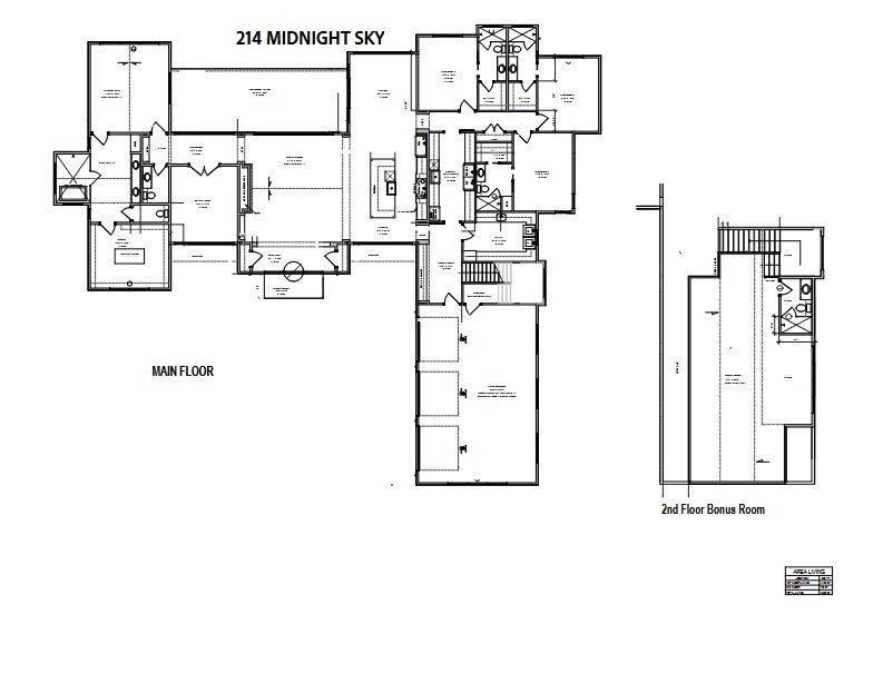
Possibilities are Endless! Price is for a finished home TBB similar to 13400 Paisano Trail as a baseline. MLS #7954992 3 acre build site that is partially cleared for a home. Listed as a To Be Built by Robert Kathman with great Hill Country views. Style and finish out for this price is similar to 13400 Paisano Trail. Open floorplan currently with walls of windows. Can be closed in as a buyer prefers. HUGE walk in pantry/dirty kitchen/ prep space. Largely a 1 story home with only a Gameroom up. Gameroom will be plumbed to add another full bath. No HOA. Low taxes. Can have 1 horse for every 1.5 acres. 2 other parcels available adjacent to this lot. www.midnightskydrive.com Plans have been submitted to Hays. Can build multiple buildings on the site. Casita, ADU, Guest House. No HOA. Low taxes. Water is MUD which is HUGE. Can have 1 horse for every 1.5 acres. 2 other parcels available adjacent to this lot.

Essential Information

  • MLS® #:
    8763918
  • Price:
    $1,999,000
  • Bedrooms:
    4
  • Bathrooms:
    5.00
  • Full Baths:
    4
  • Half Baths:
    1
  • Square Footage:
    4,930
  • Acres:
    3.00
  • Year Built:
    2026
  • Type:
    Residential
  • Sub-Type:
    Single Family Residence
  • Status:
    Active

Community Information

  • Address:
    214 Midnight Sky Drive
  • Subdivision:
    Skylight Hills
  • City:
    Austin
  • County:
    Travis
  • State:
    TX
  • Zip Code:
    78737

Amenities

  • Utilities:
    Electricity Available, Propane, Water Available
  • Features:
    See Remarks
  • Parking:
    Additional Parking
  • # of Garages:
    3
  • View:
    Hills
  • Waterfront:
    None

Interior

  • Interior:
    Tile, Wood
  • Appliances:
    See Remarks
  • Heating:
    Central
  • Fireplace:
    Yes
  • # of Fireplaces:
    2
  • Fireplaces:
    See Remarks
  • # of Stories:
    1
  • Stories:
    One

Exterior

  • Exterior Features:
    See Remarks
  • Lot Description:
    Cul-De-Sac
  • Roof:
    Metal
  • Construction:
    Masonry, Stucco
  • Foundation:
    Slab

School Information

  • District:
    Dripping Springs ISD
  • Elementary:
    Dripping Springs
  • Middle:
    Dripping Springs Middle
  • High:
    Dripping Springs

Property Listed by: Kw-austin Portfolio Real Estate

The information being provided is for consumers' personal, non-commercial use and may not be used for any purpose other than to identify prospective properties consumers may be interested in purchasing.

Based on information from the Austin Board of REALTORS® (alternatively, from ACTRIS) from April 11th, 2026 at 9:16am CDT. Neither the Board nor ACTRIS guarantees or is in any way responsible for its accuracy. The Austin Board of REALTORS®, ACTRIS and their affiliates provide the MLS and all content therein "AS IS" and without any warranty, express or implied. Data maintained by the Board or ACTRIS may not reflect all real estate activity in the market.

All information provided is deemed reliable but is not guaranteed and should be independently verified.