My Search Tools:

$3,010 - 3115 Kenai Drive Bldg 2, Cedar Park

-
Bedrooms
-
Baths
N/A
SQ. Feet
1.55
Acres

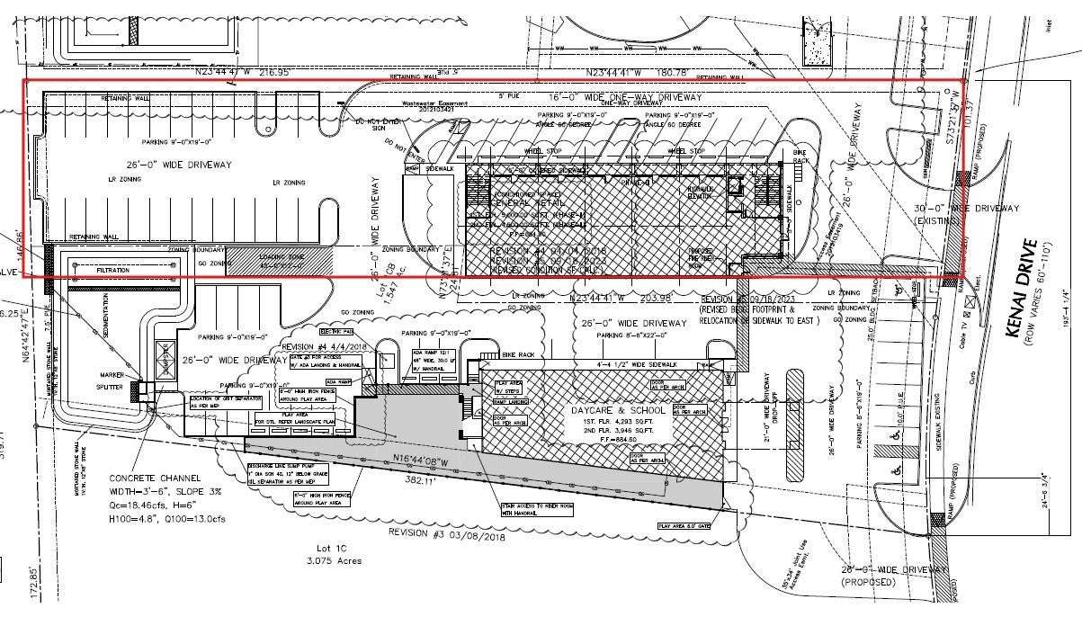
This is a shell building, completed on October 30, 2025, and is ready for occupancy with tenant finish-out. It is a very sought out great location in front of "The Ranch At Brushy Creek" and in "Breakaway Park" neighborhoods. The suites in the building is offered at a great rates of $32/sf. first floor + $10/sf NNN and $30/sf. second floor + $10/sf. NNN. Tenant incentive allowance is negotiable and free rent during construction. There is elevator to go to second floor. This building has 10 suites with minimum of 860 square feet (20 ft width x 43 ft depth) of lease space with 39 parking spaces and 1 loading zone with 45 ft depth by 12 ft width. The shopping center will have 9500 square feet (first floor 5000 sq. ft. and second floor 4500 sq ft.) of leasable retail spaces and office spaces. It is zoned LR (Local Retail). As permitted under LR zone, it can be leased for mixed usage such as grocery store, other retail store, restaurant and medical offices or other offices. Common rest rooms are provided to tenants.

Essential Information

  • MLS® #:
    2804421
  • Price:
    $3,010
  • Bathrooms:
    0.00
  • Acres:
    1.55
  • Year Built:
    2025
  • Type:
    Commercial Lease
  • Sub-Type:
    Retail
  • Status:
    Active

Community Information

  • Address:
    3115 Kenai Drive Bldg 2
  • Subdivision:
    Breakaway Park
  • City:
    Cedar Park
  • County:
    Williamson
  • State:
    TX
  • Zip Code:
    78613-Unit

Amenities

  • Utilities:
    Electricity Available, Propane, Sewer Available, Water Available
  • Parking:
    Concrete, Paved, Parking Lot

Interior

  • Interior:
    Concrete
  • Heating:
    Electric

Exterior

  • Lot Description:
    Flat
  • Construction:
    Masonry, Stone, Stucco

Additional Information

  • Zoning:
    LR (Local Retail)

Property Listed by: Umesh Mehta, Broker

The information being provided is for consumers' personal, non-commercial use and may not be used for any purpose other than to identify prospective properties consumers may be interested in purchasing.

Based on information from the Austin Board of REALTORS® (alternatively, from ACTRIS) from April 18th, 2026 at 5:15am CDT. Neither the Board nor ACTRIS guarantees or is in any way responsible for its accuracy. The Austin Board of REALTORS®, ACTRIS and their affiliates provide the MLS and all content therein "AS IS" and without any warranty, express or implied. Data maintained by the Board or ACTRIS may not reflect all real estate activity in the market.

All information provided is deemed reliable but is not guaranteed and should be independently verified.