My Search Tools:

$1,250,000 - 103 Palmie Lane, Marble Falls

3
Bedrooms
4
Baths
2,400
SQ. Feet
10.05
Acres

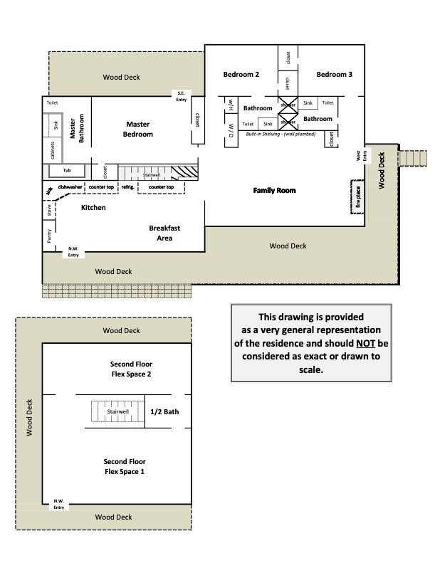
Over 10 acres at one of the higher elevations in the Marble Falls area, offering sweeping panoramic views of Lake Marble Falls, downtown Marble Falls, and the surrounding Texas Hill Country. The true value of this property lies in the land, the elevation, and its exceptional location just minutes from Marble Falls, Horseshoe Bay Resort, and Lake LBJ. The acreage features mature oaks, native trees, and striking granite outcroppings. Portions of the property slope into a canyon, creating a natural buffer that enhances privacy and security while framing dramatic Hill Country views. A two-story 2,400 sqft home built in 2001 (3 bed / 3.5 bath) currently sits on the property and is functional as a residence, guest house, or potential rental opportunity (subject to permits). It could also provide a practical place to live while planning and building a future custom home on the property. Additional improvements include two detached carports and two large water storage tanks. New survey available. This property presents a rare opportunity for a private Hill Country estate homesite with elevated lake views so close to town. Given its size, location, and proximity to Marble Falls growth corridors, buyers may also wish to explore the potential for future rezoning or subdivision opportunities, subject to city approvals and development requirements. Conveniently located approximately 2 miles from historic Marble Falls, about 5 miles from Horseshoe Bay Resort, and within easy reach of Lake LBJ, medical facilities, and regional retail development.

Essential Information

  • MLS® #:
    9125207
  • Price:
    $1,250,000
  • Bedrooms:
    3
  • Bathrooms:
    4.00
  • Full Baths:
    3
  • Half Baths:
    1
  • Square Footage:
    2,400
  • Acres:
    10.05
  • Year Built:
    2001
  • Type:
    Residential
  • Sub-Type:
    Single Family Residence
  • Status:
    Active

Community Information

  • Address:
    103 Palmie Lane
  • Subdivision:
    Lake Marble Falls
  • City:
    Marble Falls
  • County:
    Burnet
  • State:
    TX
  • Zip Code:
    78654

Amenities

  • Utilities:
    Electricity Connected, Water Connected, Propane
  • Features:
    None
  • Parking:
    Detached Carport, Driveway
  • View:
    City Lights, Hills, Lake, Panoramic
  • Waterfront:
    None

Interior

  • Interior:
    Carpet, Tile
  • Appliances:
    Dishwasher, Electric Water Heater, Gas Range
  • Heating:
    Electric, Heat Pump
  • Fireplace:
    Yes
  • # of Fireplaces:
    1
  • Fireplaces:
    Family Room
  • Stories:
    One and One Half

Exterior

  • Exterior Features:
    Balcony, Rain Gutters
  • Lot Description:
    Rock Outcropping, Trees Large Size, Views
  • Roof:
    Metal
  • Construction:
    HardiPlank Type, Wood Siding
  • Foundation:
    Slab

School Information

  • District:
    Marble Falls ISD
  • Elementary:
    Marble Falls
  • Middle:
    Marble Falls
  • High:
    Marble Falls

Property Listed by: Keller Williams - Lake Travis

The information being provided is for consumers' personal, non-commercial use and may not be used for any purpose other than to identify prospective properties consumers may be interested in purchasing.

Based on information from the Austin Board of REALTORS® (alternatively, from ACTRIS) from April 16th, 2026 at 3:33pm CDT. Neither the Board nor ACTRIS guarantees or is in any way responsible for its accuracy. The Austin Board of REALTORS®, ACTRIS and their affiliates provide the MLS and all content therein "AS IS" and without any warranty, express or implied. Data maintained by the Board or ACTRIS may not reflect all real estate activity in the market.

All information provided is deemed reliable but is not guaranteed and should be independently verified.